レジェーロ永和

基本情報

所在地: 大阪府東大阪市荒川3丁目16-8

最寄駅: 近鉄奈良線 河内永和 徒歩5分

構造: 鉄筋コンクリート造

階数: 6階

築年月: 1992年03月

特徴

エレベーター バイク置き場あり マンション 宅配ボックス 自転車置き場あり 駐車場あり

各部屋の特徴

TVモニター お風呂トイレ別 システムキッチン トイレ 三口コンロ 台所 室内洗濯機置き場 最上階 浴室乾燥機 独立洗面台 給湯機 脱衣場 追い焚き 風呂

登録物件一覧

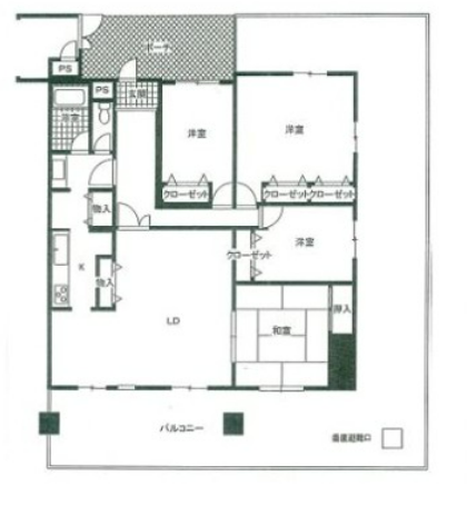
間取り図
6階 4LDK以上 115.85㎡
家賃 180,000円
詳細を見る
← 検索メニューに戻る