パークナードフィット津雲台

基本情報

所在地: 大阪府吹田市津雲台5丁目11-1-4

最寄駅: 大阪モノレール 山田 徒歩6分

構造: 鉄筋コンクリート造

階数: 11階

築年月: 2020年09月

特徴

エレベーター オートロック バイク置き場あり ペット相談 マンション 宅配ボックス 自転車置き場あり 駐車場あり

各部屋の特徴

TVモニター お風呂トイレ別 エアコン カウンターキッチン システムキッチン トイレ 三口コンロ 台所 室内洗濯機置き場 浴室乾燥機 温水洗浄便座 独立洗面台 給湯機 脱衣場 角部屋 追い焚き 風呂

登録物件一覧

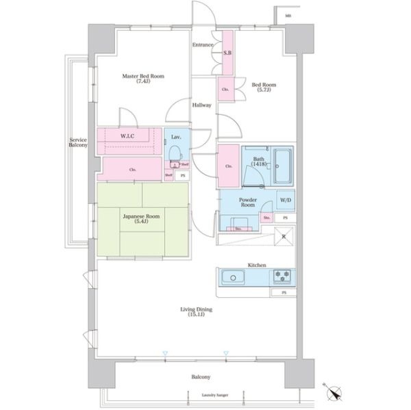
間取り図
2階 3LDK 85.77㎡
家賃 219,000円
詳細を見る
← 検索メニューに戻る